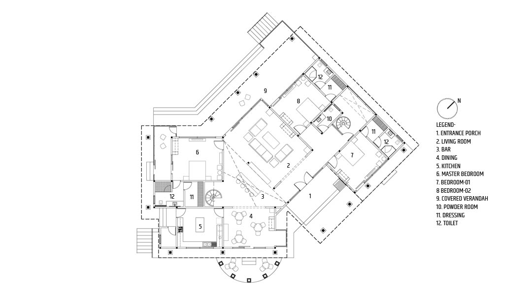
This Property Serves As A Holiday Home For The Client. Located In Tea Estate Of Nilgiri Mountaines, The Site Offers Spectacular Vantage Point Views To The Valley And Forest. Living Spaces And Bedrooms Are Planned To Look Out On Potential Views. The Property Also Features An Iconic Out House In The Sloping All The Way To Floor. Also The Bedrooms Are Planned With Attics To Serve As Cozy Living And Study Spaces For The Family Members.






